Aufstockung Langstrasse
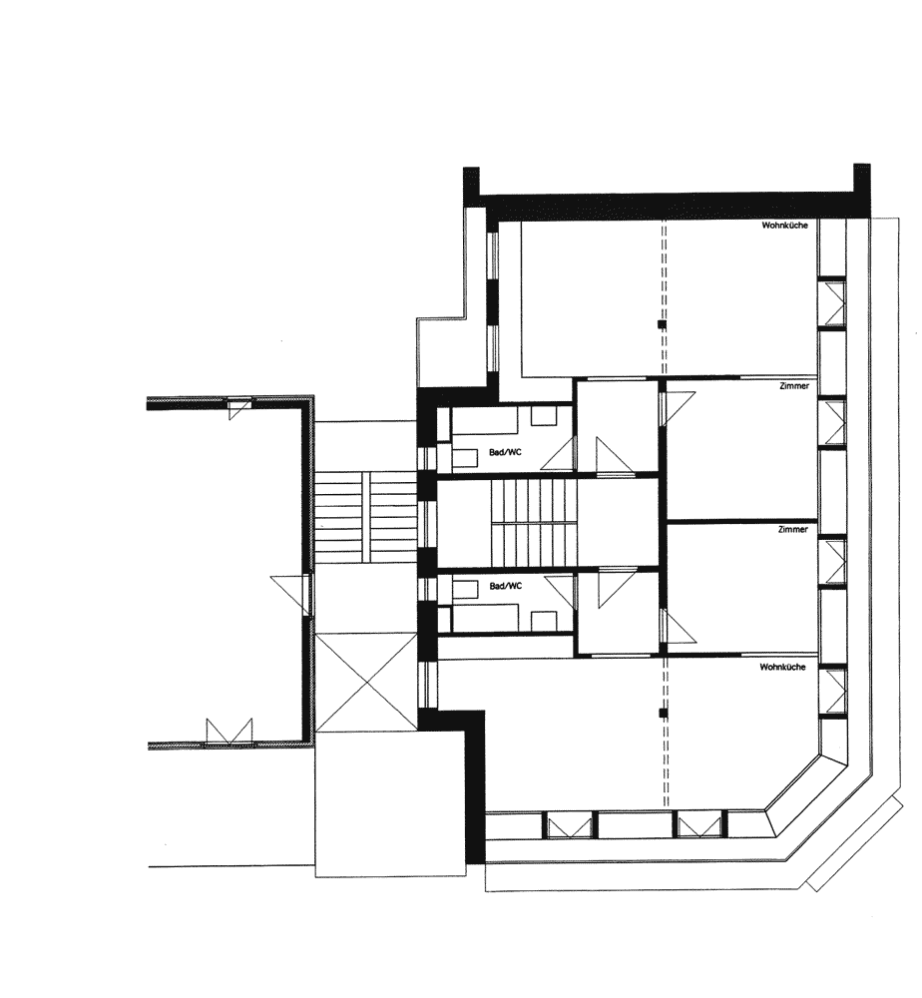
Aufstockung auf ein Blockrandgebäude mit 4 Wohnungen Kanzleistrasse 70, Zürich Auftraggeberin: Konsum Verein Zürich Projektstudie 1994 Hauptnutzfläche 294qm
Auf dem Eckgebäude Lang-/Kanzleistrasse besteht eine Ausnützungsreserve, die durch eine Aufstockung realisiert werden soll.
Die bestehende Bausubstanz soll für die Aufstockung möglichst unverändert bleiben. Die Logik der bestehenden Grundrisse wird nach oben weiter geführt. Gestalterisch wird die Aufstockung zu einem neuen, städtischen Mansardendach, das sich als leuchtender Kristall über dem bestehendem Gesimse präsentiert.



