• Werke
    • in Planung / im Bau
    • Bauten
    • Projekte
    • Studien
    • Wettbewerbe
    • Alle
  • Themen
    • Alpin
    • Areal
    • Eigenheim
    • Genossenschaftliches Wohnen
    • Holzbau
    • Infrastruktur
    • Mehrfamilienhaus
    • öffentliche Bauten
    • Umbau / Renovation
    • Urbanes Wohnen
    • Wohnen
    • Wohnen und Gewerbe
  • Unternehmen
    • Profil
    • Team
    • Kunden
    • Kontakt / Impressum

HLS Architekten

SUCHE

Wohnen

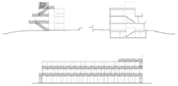
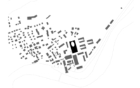
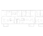
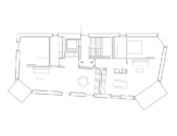
Wohnhaus in Zürich

Modell Nordfassade
Modell Nordfassade
Situation
Situation
Modell Innenraum
Modell Innenraum
0
Wohnhaus in Zürich
+1
+1
+2
+2
+3
+3
Modellstudie
Modellstudie
-1
-1
0
Wohnhaus in Zürich
Südfassade
Südfassade
Ostfassade
Ostfassade
Nordfassade
Nordfassade
Westfassade
Westfassade
A
A
B
B
Skizze Fensterkompositionen
Skizze Fensterkompositionen
Entwurf Südfassade
Entwurf Südfassade
Entwurf Ostfassade
Entwurf Ostfassade
Entwurf Westfassade
Entwurf Westfassade
Entwurf Nordfassade
Entwurf Nordfassade
Modellstudie
Modellstudie

Aemet

Aussenraumperspektive
Aussenraumperspektive
Situation
Situation
Wohnzimmer-Balkon 2-Spänner
Wohnzimmer-Balkon 2-Spänner
Regelgeschoss 2-Spänner
Regelgeschoss 2-Spänner
Wohnen-Küche-Essen 2-Spänner
Wohnen-Küche-Essen 2-Spänner
Regelgeschoss 2-Spänner
Regelgeschoss 2-Spänner
Regelgeschoss 3-Spänner
Regelgeschoss 3-Spänner
Querwohnung 3-Spänner
Querwohnung 3-Spänner
Ansicht Panoramastrasse
Ansicht Panoramastrasse

3 Hofhäuser

Modell
Modell
Wohnraum
Wohnraum
0
3 Hofhäuser
A/B
A/B
Garage
Garage
Aussenperspektive
Aussenperspektive

Stadthaus Feldblume

Ansicht Feldblumenstrasse
Ansicht Feldblumenstrasse
Situation
Situation
Grundrissskizze
Grundrissskizze
Ansicht Südwest
Ansicht Südwest
-1
-1
0
Stadthaus Feldblume
+1
+1
+3
+3
+4
+4
Ansicht Südost/Strasse
Ansicht Südost/Strasse
Ansicht Südwest
Ansicht Südwest
Ansicht Nordwest
Ansicht Nordwest
Ansicht Nordost
Ansicht Nordost
Modell Gartenansicht
Modell Gartenansicht
Modell Wohnraum
Modell Wohnraum

Im Schatz Bassersdorf

Blick ins Glatttal
Blick ins Glatttal
Situation
Situation
Wohnen am Waldrand
Wohnen am Waldrand
Wohnraum
Wohnraum
Baustelle Juli 2024
Baustelle Juli 2024
Baustelle Juli 2024
Baustelle Juli 2024
Baustelle Juli 2024
Baustelle Juli 2024
Wohnung Erdgeschoss
Wohnung Erdgeschoss
Wohnung Bel-Etage Nord
Wohnung Bel-Etage Nord
Wohnung Bel-Etage Süd
Wohnung Bel-Etage Süd
Wohnung Dachgeschoss
Wohnung Dachgeschoss
Querschnitt
Querschnitt

Wohnhaus Schaffhauserstrasse

Perspektive Schaffhauserstrasse
Perspektive Schaffhauserstrasse
Situation
Situation
Ansicht Schaffhauserstrasse
Ansicht Schaffhauserstrasse
Skelettbau
Skelettbau
Wohnung Strassenseite
Wohnung Strassenseite
Wohnung Hofanbau
Wohnung Hofanbau
+2
+2
+3
+3
+5
+5
Arbeitsmodell
Arbeitsmodell

Setapark

Strassenperspektive
Strassenperspektive
Situation
Situation
Fassadenmodell
Fassadenmodell
Alt - Neu
Alt - Neu
Situation
Situation
Modell
Modell
Erdgeschosse
Erdgeschosse
Obergeschosse
Obergeschosse
Querschnitte
Querschnitte
Wohn-Typologien Neubau
Wohn-Typologien Neubau
Ansicht Südwest
Ansicht Südwest

Obere Allmend – Manegg

Ansicht Strassenseite
Ansicht Strassenseite
Situation Manegg
Situation Manegg
Fassadenmodell
Fassadenmodell
Fassade
Fassade
Wohnüberbauung Manegg von HLS
Wohnüberbauung Manegg von HLS
Grundriss Obergeschosse
Grundriss Obergeschosse
Wohnüberbauung Manegg von HLS
Wohnüberbauung Manegg von HLS
Obere Allmend – Manegg
A/B
A/B
C
C
Treppenhaus
Treppenhaus
Kindergarten Manegg
Kindergarten Manegg
Wohnungstypologien
Wohnungstypologien
Wohnungstypologien
Wohnungstypologien
Wohnungstypologien
Wohnungstypologien
Baustelle
Baustelle

Badehosenhaus Zürich Enge

Neue Fassade
Neue Fassade
Grundriss Dachwohnung
Grundriss Dachwohnung
Küche
Küche
Bad - Küche
Bad - Küche
Zimmer
Zimmer
Zimmer
Zimmer
Badehosenhaus Zürich Enge
Neue Fassadenbemalung
Neue Fassadenbemalung
Historische Aufnahme Badehosenhaus
Historische Aufnahme Badehosenhaus
Baustelle September 2023
Baustelle September 2023
Modell Küche Dachwohnung
Modell Küche Dachwohnung
Skizze Fassade
Skizze Fassade

Weststrasse Winterthur

Weststrasse Winterthur
Wohnungsmodell
Wohnungsmodell
Axometrie
Axometrie
Grundriss Erdgeschoss
Grundriss Erdgeschoss
Grundriss 2. Obergeschoss
Grundriss 2. Obergeschoss
Grundriss 2. Obergeschoss
Grundriss 2. Obergeschoss
Ansichten Ost/Süd, Querschnitt
Ansichten Ost/Süd, Querschnitt

Wohnhaus in Zürich-Seebach

Perspektive
Perspektive
Situation
Situation
Ansicht Süd
Ansicht Süd
Ansicht Ost
Ansicht Ost
Grundriss Skizze
Grundriss Skizze
Blickrichtung Südost
Blickrichtung Südost
Blickrichtung Südwest
Blickrichtung Südwest
Regelgeschoss
Regelgeschoss
Blickrichtung Ost
Blickrichtung Ost
Bad
Bad
Modell Wohnung-geschlossen
Modell Wohnung-geschlossen
Modell Wohnung-offen
Modell Wohnung-offen
Strukturmodell
Strukturmodell

Mettmenstetten

Hof Reihenhäuser
Hof Reihenhäuser
Situation
Situation
Hof Mehrfamilienhäuser
Hof Mehrfamilienhäuser
Einblick Hof
Einblick Hof
Obergeschosse
Obergeschosse
Axometrie
Axometrie
Wohnraum mit Galerie
Wohnraum mit Galerie
Terrasse Mehrfamilienhaus
Terrasse Mehrfamilienhaus
Küche
Küche
Veranda
Veranda
Ansicht Grundrebenstrasse
Ansicht Grundrebenstrasse
Luftbild
Luftbild

Hans-Hässigstrasse Aarau

Aussenperspektive
Aussenperspektive
Situation
Situation
Dachwohnung
Dachwohnung
Erdgeschosse/Umgebung
Erdgeschosse/Umgebung
Etappen
Etappen
Ansichten
Ansichten
Konstruktion
Konstruktion

Schöneggstrasse 27

Ansicht Sihlhallenstrasse
Ansicht Sihlhallenstrasse
Situation
Situation
3. Obergeschoss, Variante 4-Zimmer-Wohnung
3. Obergeschoss, Variante 4-Zimmer-Wohnung
1. Obergeschoss, Variante 5-Zimmer-Wohnung
1. Obergeschoss, Variante 5-Zimmer-Wohnung
4. Obergeschoss, Variante Loft
4. Obergeschoss, Variante Loft
4. Obergeschoss, Variante Loft
4. Obergeschoss, Variante Loft
Badezimmer
Badezimmer
0
Schöneggstrasse 27
+1
+1
+2
+2
+3
+3
+4
+4
+5
+5
Südfassade
Südfassade
Nordfassade
Nordfassade
A
A
B
B

Am Glattbogen

Am Glattbogen
Modell Wohnung
Modell Wohnung
Konzept Aussenraum
Konzept Aussenraum
Obergeschoss
Obergeschoss
Typischer Grundriss
Typischer Grundriss

Habsburgstrasse 1

Ansicht Habsburgstrasse
Ansicht Habsburgstrasse
Situation
Situation
2. Obergeschoss, Variante 4-Zimmer Wohnung
2. Obergeschoss, Variante 4-Zimmer Wohnung
Tragstruktur
Tragstruktur
2. Obergeschoss, Variante 4-Zimmer Wohnung
2. Obergeschoss, Variante 4-Zimmer Wohnung
Habsburgstrasse 1
3. Obergeschoss, Variante 5-Zimmer Wohnung
3. Obergeschoss, Variante 5-Zimmer Wohnung
3. Obergeschoss, Variante 5-Zimmer Wohnung
3. Obergeschoss, Variante 5-Zimmer Wohnung
Fassade Habsburgstrasse
Fassade Habsburgstrasse
0
Habsburgstrasse 1
+1
+1
+2
+2
+3
+3
A
A
Fassadenmodell
Fassadenmodell

Spinnerkönig

Modell Kunz Areal
Modell Kunz Areal
Situation
Situation
Ansicht Süd
Ansicht Süd
1. Obergeschoss, Variante 4-Zimmer-Wohnung
1. Obergeschoss, Variante 4-Zimmer-Wohnung
1. Obergeschoss, Variante 2-Zimmer-Wohnung
1. Obergeschoss, Variante 2-Zimmer-Wohnung
1. Obergeschoss, Variante 3-Zimmer-Wohnung
1. Obergeschoss, Variante 3-Zimmer-Wohnung
1. Obergeschoss, Variante 4-Zimmer-Wohnung
1. Obergeschoss, Variante 4-Zimmer-Wohnung
1. Obergeschoss, Variante 4-Zimmer-Wohnung
1. Obergeschoss, Variante 4-Zimmer-Wohnung
Erdgeschoss, Variante 4-Zimmer-Wohnung
Erdgeschoss, Variante 4-Zimmer-Wohnung
Situation
Situation
Gebäudeecke
Gebäudeecke
Ansicht Spitzmattstrasse
Ansicht Spitzmattstrasse
0
Spinnerkönig
+1
+1
0
Spinnerkönig
+1
+1
A
A

Hadlaubsteig

Aussenansicht aus Süd-Westen
Aussenansicht aus Süd-Westen
Situationsmodell
Situationsmodell
Gartenmodell
Gartenmodell
Gartengeschoss (erstes Untergeschoss)
Gartengeschoss (erstes Untergeschoss)
Erdgeschoss
Erdgeschoss
1. Obergeschoss
1. Obergeschoss
2. Obergeschoss
2. Obergeschoss
Schnitt längs zum Hadlaubsteig
Schnitt längs zum Hadlaubsteig
Schnitt senkrecht zum Hadlaubsteig
Schnitt senkrecht zum Hadlaubsteig
West-Ansicht
West-Ansicht
Süd-Ansicht
Süd-Ansicht
Wohnung 1: Blick von Eingang in Richtung Salon
Wohnung 1: Blick von Eingang in Richtung Salon
Wohnung 1: Blick von Salon in Richtung Dachgeschoss
Wohnung 1: Blick von Salon in Richtung Dachgeschoss
Wohnung 1: Blick vom Essbereich zum Eingang
Wohnung 1: Blick vom Essbereich zum Eingang
Wohnung 2: Blick von Salon Richtung Wohnessbereich
Wohnung 2: Blick von Salon Richtung Wohnessbereich
Wohnung 1: Hauptbadezimmer
Wohnung 1: Hauptbadezimmer
Ansicht von Nord-Osten
Ansicht von Nord-Osten

Walkeweg Basel

Konzeptmodelle
Konzeptmodelle
Situation
Situation
Perspektive Südseite
Perspektive Südseite
Grundrisskonzept
Grundrisskonzept
Obergeschoss
Obergeschoss
Perspektive Innenraum
Perspektive Innenraum
Wohnungstypen
Wohnungstypen

Kanzleistrasse 72

Konzept
Konzept
Situation
Situation
Terrasse
Terrasse
1. Obergeschoss, Variante 5-Zimmer-Wohnung
1. Obergeschoss, Variante 5-Zimmer-Wohnung
0
Kanzleistrasse 72
+1/+2
+1/+2
+3/+4
+3/+4
+5
+5
Westfassade
Westfassade
A
A
Ansicht Kanzleistrasse
Ansicht Kanzleistrasse

Steinhalden-/Scheideggstrasse

Perspektive Steinhaldenstrasse
Perspektive Steinhaldenstrasse
Stadträume
Stadträume
Schwarzplan
Schwarzplan
Situation
Situation
Erdgeschoss, Obergeschoss Steinhaldenstrasse
Erdgeschoss, Obergeschoss Steinhaldenstrasse
Schnitt Steinhalden - Scheideggstrasse
Schnitt Steinhalden - Scheideggstrasse
Konstruktion / Fassade
Konstruktion / Fassade
Typologie Steinhaldenstrasse
Typologie Steinhaldenstrasse
Typologie Schedieggstrasse (Umbau)
Typologie Schedieggstrasse (Umbau)

Andermatt: 2 Villencluster

Ansicht von der Reuss
Ansicht von der Reuss
Modell Cluster
Modell Cluster
Cluster 1 und 2
Cluster 1 und 2
Platz, Eingangshof
Platz, Eingangshof
Situation, Übersicht alle Cluster
Situation, Übersicht alle Cluster
Aussicht in die Reussebene
Aussicht in die Reussebene

Heidi-Abel-Weg

Garten
Garten
Schwarzplan
Schwarzplan
Modell
Modell
Erdgeschoss/Situation
Erdgeschoss/Situation
Obergeschosse
Obergeschosse
Wohnungskatalog
Wohnungskatalog
Laubengang
Laubengang
Konstruktionsprinzip
Konstruktionsprinzip

Zypressenstrasse Winterthur

Wohnen am Hof
Wohnen am Hof
Modell
Modell
Erdgeschoss
Erdgeschoss
Regelgeschoss
Regelgeschoss
Dachgeschoss
Dachgeschoss
Ansicht Zypressenstrasse
Ansicht Zypressenstrasse
Schnitt
Schnitt
Erschliessung Laubengang
Erschliessung Laubengang
Wohnungstypologie Regelgeschoss
Wohnungstypologie Regelgeschoss

Amselweg Dübendorf

Skizze
Skizze
Situation
Situation
Modell
Modell
0
Amselweg Dübendorf
+1
+1
S
S
Hoffassade
Hoffassade
Haus Amsel Obergeschoss
Haus Amsel Obergeschoss
Haus Högler Erdgeschoss
Haus Högler Erdgeschoss
Haus Högler 1. Obergeschoss
Haus Högler 1. Obergeschoss
Geschosswohnung
Geschosswohnung

Holzwerk Windisch

Holzwerk Windisch
Aussenraumbezüge
Aussenraumbezüge
Grundriss Obergeschoss
Grundriss Obergeschoss
Modell
Modell
Konstruktionsschnitt
Konstruktionsschnitt
Wohnraum 2-Zi-Wohnung
Wohnraum 2-Zi-Wohnung

Küngenmatt

Küngenmatt
Situation
Situation
Wohnraum - Küche - Balkon
Wohnraum - Küche - Balkon
Wohnungstyp Strasse
Wohnungstyp Strasse
Wohnungstyp Hof
Wohnungstyp Hof
Obergeschosse
Obergeschosse
Längsschnitt - Hofansicht
Längsschnitt - Hofansicht

Hofwiesenstrasse

Obergeschoss
Obergeschoss
Perspektive Hofwiesenstrasse
Perspektive Hofwiesenstrasse
Arbeitsmodelle
Arbeitsmodelle
Modell
Modell
Situation
Situation

Glockenacker

Glockenacker
Glockenacker
Modell
Modell
Obergeschosse
Obergeschosse
Konstruktionskonzept
Konstruktionskonzept
Wohnraum
Wohnraum

Köchlistrasse

Hofansicht
Hofansicht
Wohnraum/Küche
Wohnraum/Küche
Situation
Situation
Ansicht Köchlistrasse
Ansicht Köchlistrasse
Grundriss Obergeschoss
Grundriss Obergeschoss
Querschnitt
Querschnitt

Zentrum Hombrechtikon

Fassade
Fassade
Situation
Situation
Zentrum Hombrechtikon
Zentrum Hombrechtikon
0
Zentrum Hombrechtikon
Grundrisse Obergeschoss
Grundrisse Obergeschoss
+1
+1
+2/+3
+2/+3
+4
+4
Zentrum Hombrechtikon
Perspektive Wohnung
Perspektive Wohnung
Dachlandschaft
Dachlandschaft
Arbeitsmodelle Wettbewerb
Arbeitsmodelle Wettbewerb
A
A
B
B
C
C
D
D
E
E

Hunzikerei

Hunzikerei
Situation
Situation
Grundrissschema
Grundrissschema
Grundriss Wohngeschosse
Grundriss Wohngeschosse
Grundriss Erdgeschoss
Grundriss Erdgeschoss
Farb-/Materialkonzept
Farb-/Materialkonzept

Nadelband

Wohnhof Projektperimeter
Wohnhof Projektperimeter
Etappe 1 - Projektperimeter
Etappe 1 - Projektperimeter
Etappe 2 - Ideenperimeter
Etappe 2 - Ideenperimeter
Etappe 3 - Ideenperimeter
Etappe 3 - Ideenperimeter
Grundrisse Projektperimeter
Grundrisse Projektperimeter
Wohnraum Projektperimeter
Wohnraum Projektperimeter

Glarnerstrasse Siebnen

Perspektive mit Aufstockung
Perspektive mit Aufstockung
Grundriss Aufstockung
Grundriss Aufstockung
Glarnerstrasse Siebnen
Strassenansicht mit Aufstockung
Strassenansicht mit Aufstockung
Ansicht vor Renovation
Ansicht vor Renovation

Tüfwis

Tüfwis
Schwarzplan
Schwarzplan
Obergeschosse
Obergeschosse
Ansicht Spichergasse, Schnitt
Ansicht Spichergasse, Schnitt
Wohnung
Wohnung
Ost-West Wohnungen
Ost-West Wohnungen
Kopfwohnungen
Kopfwohnungen
Nord-Süd Wohnungen
Nord-Süd Wohnungen
Fassade
Fassade

Bankstrasse Uster

Modell
Modell
Bürogeschoss
Bürogeschoss
Wohngeschoss
Wohngeschoss
Skizze Fassadenpropotionen
Skizze Fassadenpropotionen
Skizze Fassadenpropotionen
Skizze Fassadenpropotionen
Modell Struktur
Modell Struktur

Heinrich Nord

Heinrich Nord
Situation Unterwindisch
Situation Unterwindisch
Grundriss
Grundriss
Längsschnitt
Längsschnitt

Freihofstrasse 30-36 Zürich

Freihofstrasse 30-36 Zürich
Grundriss Regelgeschoss
Grundriss Regelgeschoss
Grundriss Erdgeschoss
Grundriss Erdgeschoss
Ansicht Freihofstrasse
Ansicht Freihofstrasse
Ausschnitt Regelgeschoss
Ausschnitt Regelgeschoss
Ausschnitt Erdgeschoss
Ausschnitt Erdgeschoss
Ausschnitt Dachgeschoss
Ausschnitt Dachgeschoss
Schnitt
Schnitt

Herdernstrasse

Schematische Strassenfassade
Schematische Strassenfassade
Situation
Situation
Grundriss Erdgeschoss
Grundriss Erdgeschoss
Grundriss Obergeschoss
Grundriss Obergeschoss
Skizze Balkon-Wohnküche
Skizze Balkon-Wohnküche
typische Wohnung
typische Wohnung

Guldisloo Wetzikon

Guldisloo Wetzikon
Situation
Situation
Obergeschoss "Familienwohnen"
Obergeschoss "Familienwohnen"
Obergeschoss "praktische Mitte"
Obergeschoss "praktische Mitte"
Obergeschoss "verdiente Aussicht"
Obergeschoss "verdiente Aussicht"
Innenperspektive "Familienwohnen"
Innenperspektive "Familienwohnen"

Kalkbreite

Perspektive Strasse
Perspektive Strasse
Perspektive Laubengang
Perspektive Laubengang
Aufsicht
Aufsicht
Typischer Grundriss OG
Typischer Grundriss OG
Modell
Modell

Resort Andermatt

Perspektive Situation
Perspektive Situation
Situation
Situation
Untergeschoss_Erdgeschoss
Untergeschoss_Erdgeschoss
Obergeschoss_Dachgeschoss
Obergeschoss_Dachgeschoss
Schnitt_Ansichten
Schnitt_Ansichten
Perspektive
Perspektive
Resort Andermatt
Resort Andermatt

Bellinzona

Situation
Situation
Bellinzona
Grundrisskonzept
Grundrisskonzept
Erdgeschoss
Erdgeschoss
Obergeschoss
Obergeschoss
Typischer Grundriss OG
Typischer Grundriss OG

Rautistrasse

Perspektive
Perspektive
Situation
Situation
Erdgeschoss
Erdgeschoss
Obergeschoss
Obergeschoss
Typische Grundrisse
Typische Grundrisse
Modell
Modell

Hohlstrasse 149

Perspektive Strasse
Perspektive Strasse
Perspektive Hof
Perspektive Hof
Modell Obergeschoss
Modell Obergeschoss
Grundriss Obergeschoss
Grundriss Obergeschoss

Glattpark

Modell
Modell
Situation Erdgeschoss
Situation Erdgeschoss
1.Obergeschoss
1.Obergeschoss
Ansicht zum See hin
Ansicht zum See hin
Schnitte
Schnitte
Wohnungstypologie
Wohnungstypologie
Wohnungstypologie
Wohnungstypologie

Hohlstrasse 163

Innenhof
Innenhof
Situation
Situation
Grundrissvarianten
Grundrissvarianten
Ansicht Hohlstrasse
Ansicht Hohlstrasse

Aufstockung Langstrasse

Aufstockung Langstrasse
Schnitt
Schnitt
Ansicht Langstrasse
Ansicht Langstrasse
Grundriss 6. OG
Grundriss 6. OG

Bolleystrasse

Wohnungseinheit, Strassenseite
Wohnungseinheit, Strassenseite
Situationsmodell
Situationsmodell
Obergeschosse
Obergeschosse
Erdgeschoss / Eingangsgeschoss
Erdgeschoss / Eingangsgeschoss
Wohnungseinheit, Gartenseite
Wohnungseinheit, Gartenseite
Längsschnitt
Längsschnitt
Querschnitt
Querschnitt
Reservoir
Reservoir

Müller Martini Areal

Panorama
Panorama
Situation Erdgeschosse
Situation Erdgeschosse
Aussenbild
Aussenbild
Blick vom Dach
Blick vom Dach
Ansichten
Ansichten
Schnitt
Schnitt
Hof mit Halle 1920
Hof mit Halle 1920
Fassade Umbau Halle 1920
Fassade Umbau Halle 1920

Schwimmbadstrasse Kloten

Schwimmbadstrasse Kloten
Schwimmbadstrasse Kloten
Grundriss Aufstockung
Grundriss Aufstockung
Schnitt Aufstockung
Schnitt Aufstockung
Modell Aufstockung
Modell Aufstockung
Modell Erschliessung
Modell Erschliessung
Massnahmen Gebäudehülle und Aufstockung
Massnahmen Gebäudehülle und Aufstockung
Farbkonzept
Farbkonzept

Burgmatte

Aussenperspektive
Aussenperspektive
Modell
Modell
Grundriss Erdgeschoss
Grundriss Erdgeschoss
Typischer Grundriss
Typischer Grundriss
Wohnraum
Wohnraum

Hegianwand

Modell Situation
Modell Situation
Erdgeschoss
Erdgeschoss
Ansicht_Schnitt
Ansicht_Schnitt
Obergeschoss
Obergeschoss

Roggenstrasse Zürich

Roggenstrasse Zürich
Grundriss Aufstockung/Neubau
Grundriss Aufstockung/Neubau
Querschnitt Aufstockung
Querschnitt Aufstockung
Konzeptmodell
Konzeptmodell
Zustand heute
Zustand heute
Situation
Situation

Neumünsterallee

Neumünsterallee
Situation Erdgeschoss
Situation Erdgeschoss
1.Obergeschoss
1.Obergeschoss
Dachgeschoss
Dachgeschoss
Schnitt
Schnitt

Ilgenstrasse

Ilgenstrasse
Aussenansicht
Aussenansicht
Axonometrie
Axonometrie
Grundriss 1. Obergeschoss
Grundriss 1. Obergeschoss
Ausbauvarianten 1. Obergeschoss
Ausbauvarianten 1. Obergeschoss
HLS Architekten © 2026