Burgmatte
Wohnüberbauung in Zürich-Riesbach Auftraggeberin: Wohnbaugenossenschaft Burgmatte, Zürich Studienauftrag auf Einladung, 2001
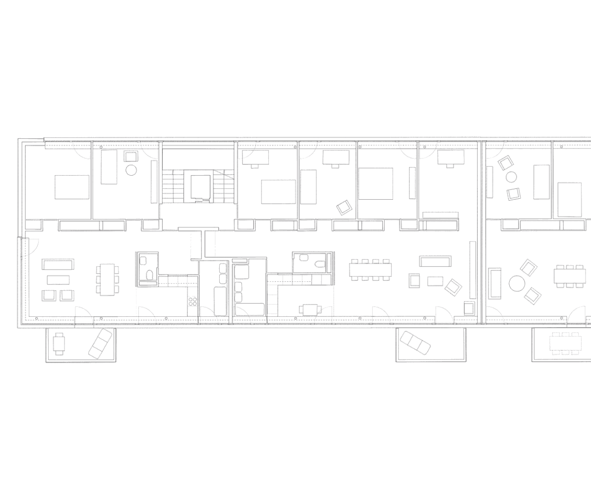
Zwei skulpturale Baukörper stehen entlang der Schmalseiten des Grundstücks. Die einfache Baustruktur gliedert die Grundrisse in eine Zimmer- und eine Wohn/Essschicht. Später Veränderungen bleiben so möglich. Ein Zimmer pro Wohnung kann direkt vom Treppenhaus erschlossen werden. Die Nasszellen sind zentral an der Grenze zwischen zwei Wohnungen angeordnet. Alle Badezimmer verfügen über natürliche Belichtung und Belüftung. Die Küchen bilden mit den Wohnräumen eine Einheit, können aber auch abgetrennt werden. Die Fassaden sind nicht nach Nutzung differenziert: Ein grosszügiges Bandfenster erstreckt sich vor sämtlichen Räumen und unterstreicht so das räumliche Kontinuum innerhalb der Wohnungen.
Während die drei Obergeschosse und das Dachgeschoss grundsätzlich gleich ausgebildet sind, werden im Erdgeschoss zusätzliche, das Wohnen ergänzende, Nutzungen angeboten: Ateliers, Hobbyräume, Veloräume, Waschküchen, ein Siedlungsbüro und grosszügie Eingänge zu den Treppenhäusern. Der offene Raum unter dem westlichen, geknickten Gebäudekörper schafft zudem den Übergang vom intimeren Hofraum zu einer Vorgartenzone an der August-Forell-Strasse. Auf diese Art und Weise können problematische Erdgeschosswohnungen vermieden und eine städtebaulich befriedigende Lösung des Aussenraums angeboten werden. Die ganze Anlage erhält einen einladenden, eleganten und repräsentativen Charakter.




