Holzwerk Windisch
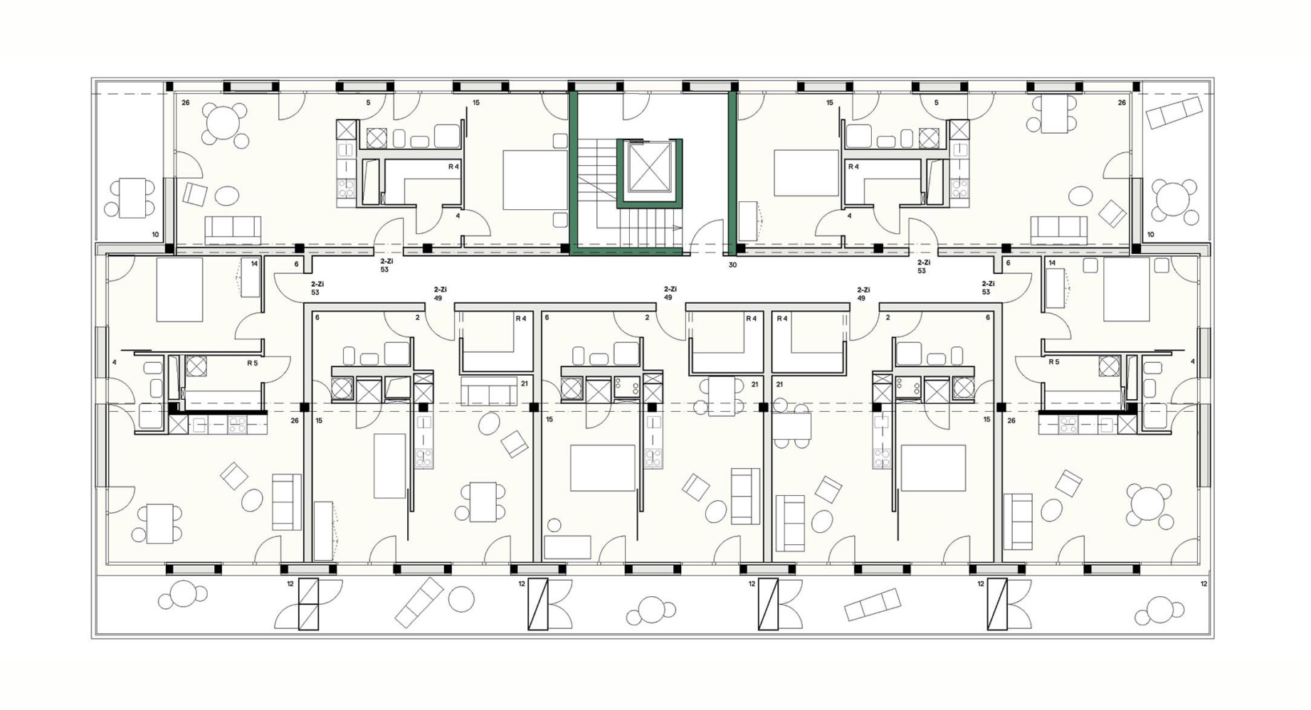
Holzhaus auf dem Areal der ehemaligen Textilfabrik Kunz in Windisch AG Auftraggeberin: HIAG Immobilien AG, Zürich Gesamtleistungswettbewerb 2021 Totalunternehmer: Hector Egger Gesamtdienstleistung AG, Langenthal 28 Kleinwohnungen Verkaufsräume, Wohnateliers Hauptnutzfläche Wohnen: 1’760m2 Bausumme BKP 1-5: 9.9 Mio. CHF
Das letzte Bauwerk im Rahmen der Umnutzung des Kunzareals steht an einer strategisch wichtigen Stelle am Eingang zum Areal. Entsprechend sollten im Erdgeschoss Publikumsnutzungen – auch in Ergänzung zum gemeinschaftlich genutzten Disellokal – angeboten werden. Der Vorschlag schlägt auf Erdgeschossebene über Rücksprünge ein Netz von Raumbezügen vor, die aus der Dichte rund um das Gebäude verschiedene, qualitativ hochwertige Aussenräume schaffen.
Beim Skelettbau handelt es sich um einen vollständigen Holzbau, der hochflexibel ist und deshalb neben den gewünschten Kleinwohnungen alternative Nutzungen ermöglicht. Das Haus ist also nicht nur technisch-konstruktiv nachhaltig sondern auch strukturell.





