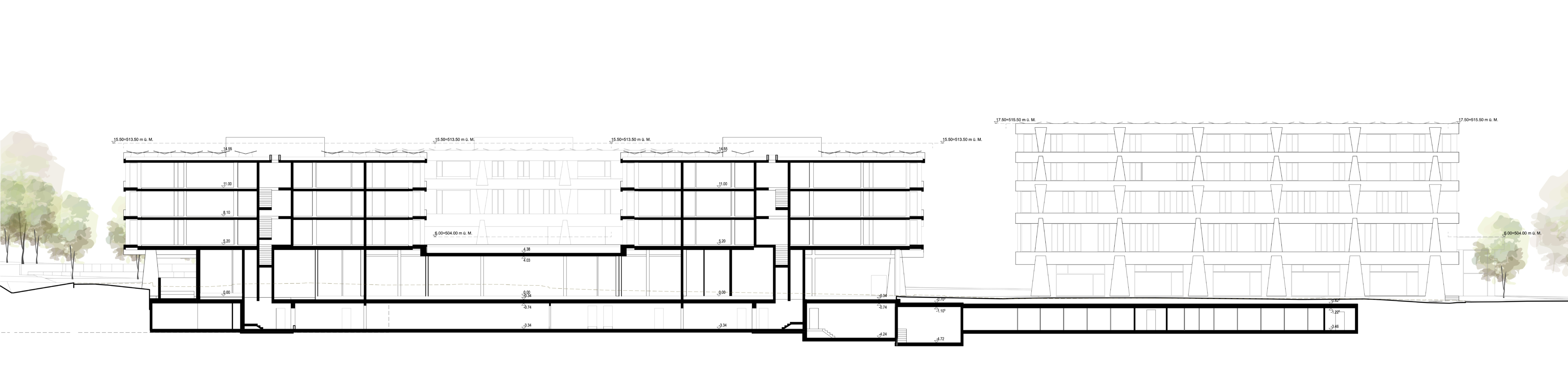
Zentrum Hombrechtikon
Neubau einer gemischten Zentrumsüberbauung
Auftraggeberin: Landi Hombrechtikon Genossenschaft
Wettbewerb auf Einladung, 2018, 1. Preis
geplanter Bezug: 2023
50 Wohnungen
2’400qm Detailhandelsflächen
Tankstelle
Einstellhalle
Umgebungsgestaltung: asp Landschaftsarchitekten, Zürich
Hombrechtikon soll ein neues Zentrum erhalten. Statt am Dorfrand an einer Verkehrsdrehscheibe soll der neue Migros, ein Volg mit Tankstelle und andere Läden mitten im Zentrum neu gebaut werden und dabei die bereits bestehenden Läden und Restaurants ergänzen und stärken. Ein Angebot von fünfzig neuen Wohnungen soll das Zentrum zusätzlich beleben.
















