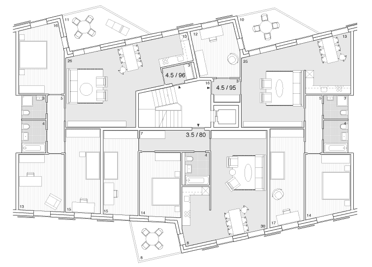
Hornbach Neubau städtische Wohnsiedlung, Zürich, Studienwettbewerb 2011 HornbachstrasseSituationRegelgeschoss Haus NordRegelgeschoss Haus SüdWohnungstypologieFassadeBellerive-/Hornbachstrasse Hornbach Städtische Wohn- und Geschäftsüberbauung Hornbach, Zürich Studienwettbewerb auf Einladung 2011 Ausloberin: Stadt Zürich