Oberer Graben
Offener Wettbewerb 2003 Auftraggeberin: Kanton St. Gallen Erweiterung eines Verwaltungsgebäudes (Strassenverkehrsamt) am Rande der St. Galler Altstadt.
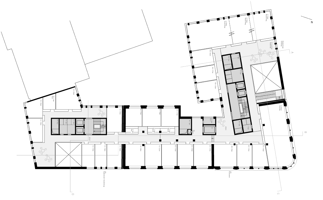
Die Aufgabe bestand darin, die bestehenden Altbauten des St. Gallischen Strassenverkehrsamtes durch zwei Neubauten zu vergrössern und zu modernisieren.
Das Projekt von HLS schafft ein neues Rückgrat, das teilweise in die Altbauten eingreifft. Treppenhäuser und Nasszellen werden so vollständig erneuert. An der Frongartenstrasse entsteht eine repräsentative Publikumszone. Die Fassaden nehmen das Thema der steinernen Verwaltungsgebäude der Jahrhundertwende auf.





