Schöneggstrasse 27
Neubau mit fünf Wohnungen und einem Laden in 8004 Zürich
Direktauftrag: Baugenossenschaft homelab, Zürich
Planung 2004–2006, Realisation 2006–2007
Bezug: Dezember 2007
Bausumme: 3 Mio CHF (BKP 1-5)
Volumen: 3‘700m3 (SIA 116)
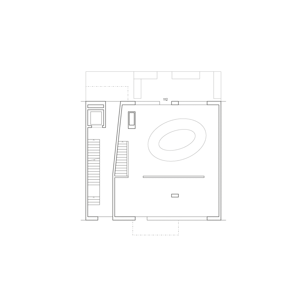
Der Neubau für die Baugenossenschaft homelab, der das Grundstück zwischen Schönegg- und Sihlhallenstrasse maximal ausnützt, enthält ebenerdig einen Verkaufs- oder Büroraum, pro Obergeschoss je eine 125qm grosse Wohnung mit grosszügiger Terrasse und im Dachgeschoss eine 81qm grosse Attikawohnung.
Die Wohnungen in den Normalgeschossen sind in drei unterschiedlich hohe Zonen aufgeteilt, die sich flexibel ausbauen lassen. Die Mieter konnten jeweils zwischen einem Lofttyp und einer ausgebauten Wohnung wählen, wobei je nach Anzahl Zwischenwänden Optionen zwischen einer Drei- und Fünfzimmerwohnung bestehen.
Die beiden Fassaden an der Schönegg- und an der Sihlhallenstrasse sind grundsätzlich gleichartig ausgebildet. Es wird nicht zwischen einer Vorder- und Rückfassade unterschieden. Konsequenterweise kann die luxuriöse Eingangshalle von beiden Seiten betreten werden. Auch die Verkaufsfläche im Erdgeschoss verfügt an beiden Strassen über grossformatige Schaufenster mit je einem Eingang. Die Fassade besteht aus einer verputzten, polychrom gestalteten Gebäudehülle mit grosszügigen Fenstern. Der grosse Fensteranteil bringt viel Licht in die Innenräume. Dennoch fühlt man sich durch die Brüstungen in allen Räumen den Nachbarn gegenüber nicht ausgestellt. Je ein Erker auf der Schönegg- und der Sihlhallestrassenseite erlauben Ausblicke in die Strassenfluchten. Auf der ruhigen Sihlhallestrassenseite wurde die Fassadenabwicklung zusätzlich durch den eingezogenen Balkon vergrössert, so dass der grösste Teil der Wohnungen von dieser ruhigeren Seite natürlich belüftet werden können.
















