Stadthaus Feldblume
Neubau Stadthaus, Feldblumenstrasse 8048 Zürich
Auftraggeber: privat
Direktauftrag 2019, Bezug Ende 2022
5 Wohnungen, Hauptnutzfläche (SIA 416): 534m2
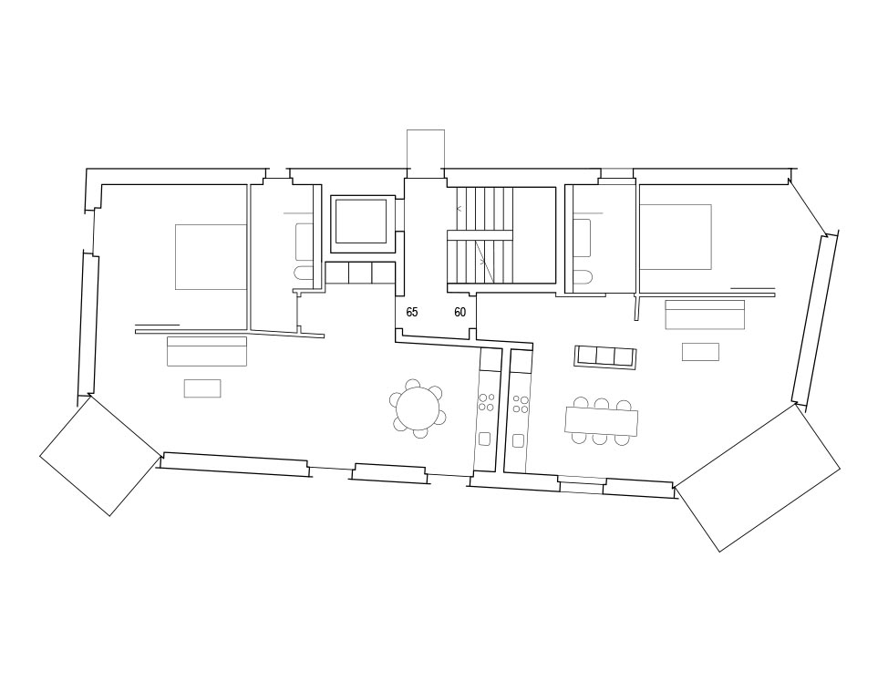
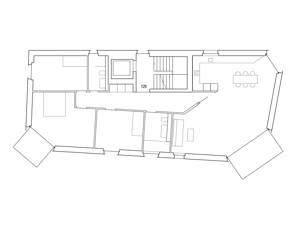
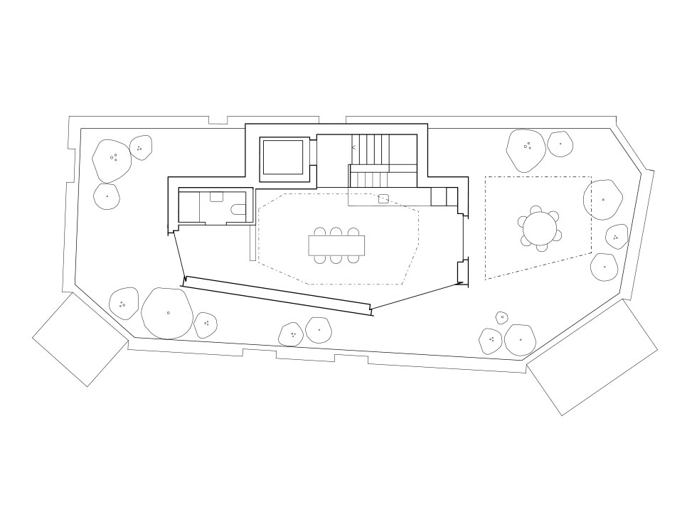
Der Ersatzneubau umfasst 5 Wohnungen, einen Raum auf dem Dach sowie ein Untergeschoss und soll als Mehrgenerationen-Haus bewohnt werden. Der Grundriss des Hauses folgt konsequent dem Sonnenlauf. Die Etagenwohnungen öffnen sich in den Gebäudeecken zur Morgen-, Mittag- und Abendsonne. Alle den Fenstern zugehörigen Bauteile, wie Geländer, Storen- und Markisenkästen, aber auch die Balkone, entwickeln sich aus diesen Fensteröffnungen heraus und sind im selben Farbton gehalten. Im Kontrast zu diesen Fensteröffnungen sind die geschlossenen Wandflächen mit einer hellen Welleternit-Platte verkleidet, die dem Haus eine Leichtigkeit verleihen. Nach oben hin wird das Volumen durch ein sich zurückstaffelnder Dachraum abgeschlossen. Gesamthaft entsteht ein Solitär, der auf alle Seiten differenziert reagiert und räumliche Verbindungen mit der Umgebung eingeht.














