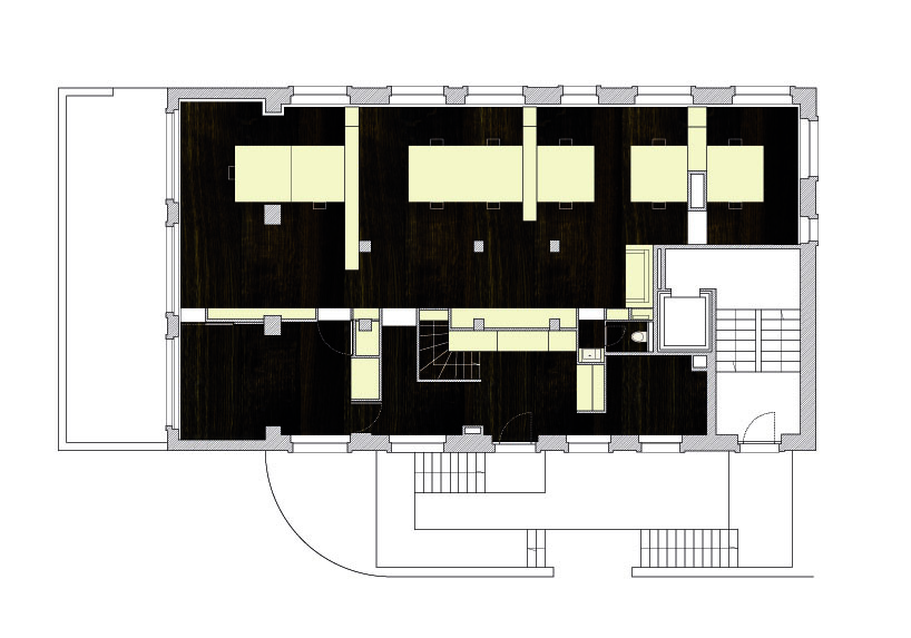
Pumpkin Film AG Büroumbau, Zürich 2001 KonzeptGrundrissEingangArbeitstischeArbeitsbereich Pumpkin Film AG Umbau Büroräumlichkeiten Auftraggeber: Pumpkin Film AG, Zürich Direktauftrag Planung, Umbau: 2000- 2001