Weststrasse Winterthur
Neubau Wohnhaus mit 15 Wohnungen
Auftraggeberin: Immobilienkosmos AG, Zürich
Direktauftrag ab 2021
Bezug 2024
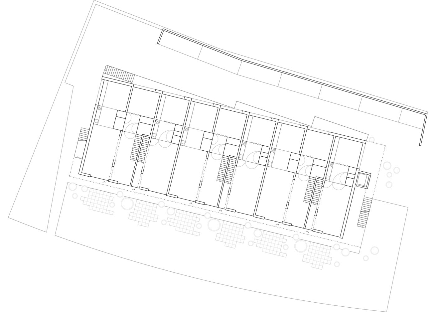
Das Haus auf dem länglichen Grundstück ersetzt ein einfaches Wohnhaus aus den fünfziger Jahren. Angeboten werden 15, auf einem Betongestell gestapelte Reihenhauswohnungen. Die Wohnungen im Erd- und Untergeschoss werden direkt über den Garten von Süden erschlossen. Eine Treppe an der Ostseite führt zu einem Laubengang, über den die Maisonettewohnungen im 1. und 2. Obergeschoss erschlossen werden. Jede dieser Wohnungen verfügt so beim Laubengang einen öffentlicheren und im oberen Geschoss einen privaten Balkon. Über ein System von klappbaren Wänden können die Wohnungen zu verschiedenen Typen geschaltet werden.
Über dem Sockelgeschoss wird das Haus als Holzbau erstellt. Die prägnante Baustruktur bleibt im Inneren weitgehend sichtbar und trägt zum speziellen Charakter der Wohnungen bei.






